Furniture Design


A good and well-considered design is perhaps one of the most important elements in furniture manufacturing. This is especially true for modular furniture, which is customized according to the client's needs, as well as the dimensions and spaces of the area. Therefore, we always dedicate a significant amount of our time to preparing and refining designs in collaboration with our clients.
A good and well-considered design is perhaps one of the most important elements in furniture manufacturing. This is especially true for modular furniture, which is customized according to the client's needs, as well as the dimensions and spaces of the area. Therefore, we always dedicate a significant amount of our time to preparing and refining designs in collaboration with our clients.
Read More
The design process consists of several steps:
Measure the spaces where the furniture will be placed and add dimensions to the room photos.
Discuss project details such as door positions and numbers, drawer layout, refrigerator and other appliances placement, etc.
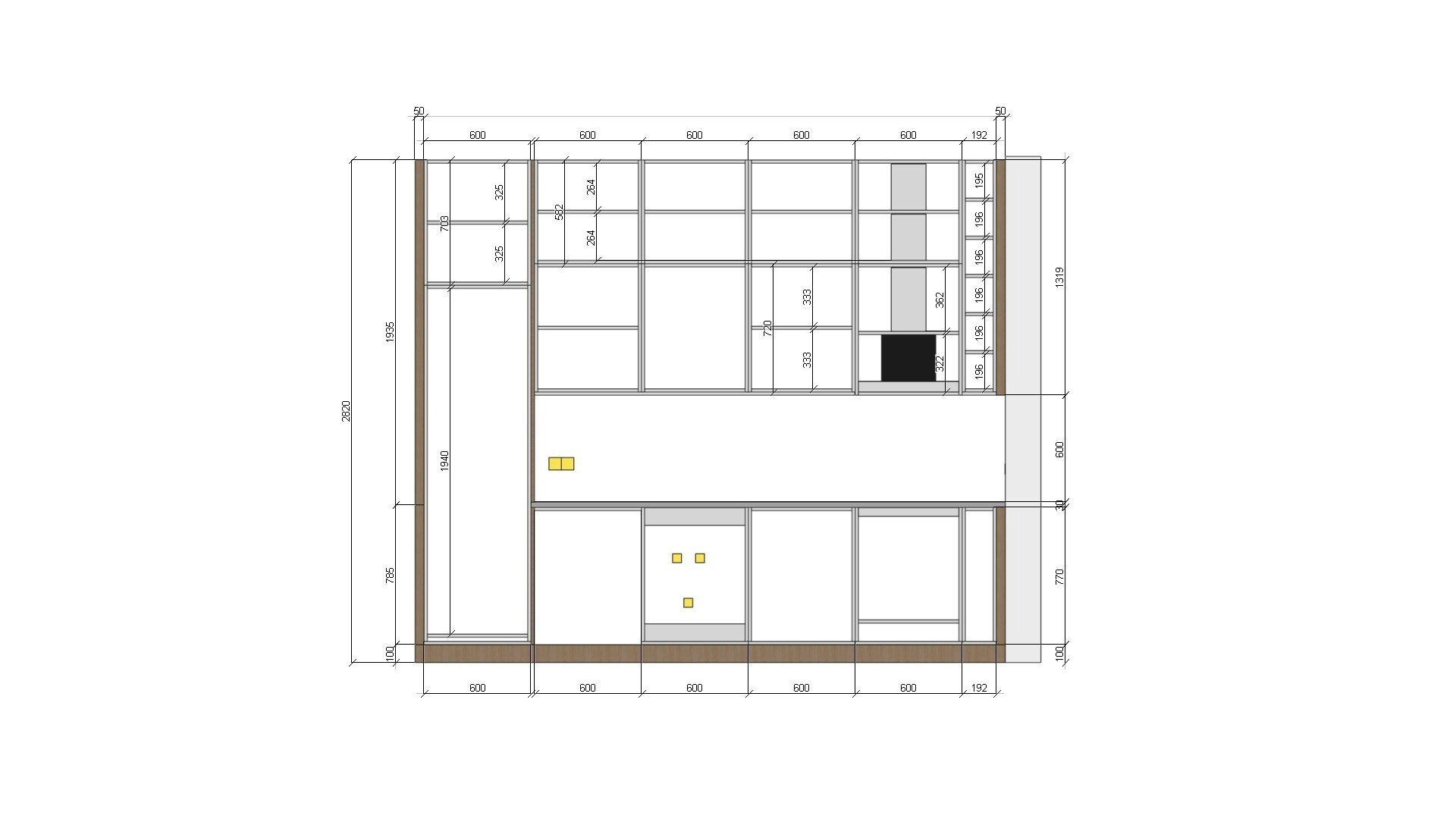
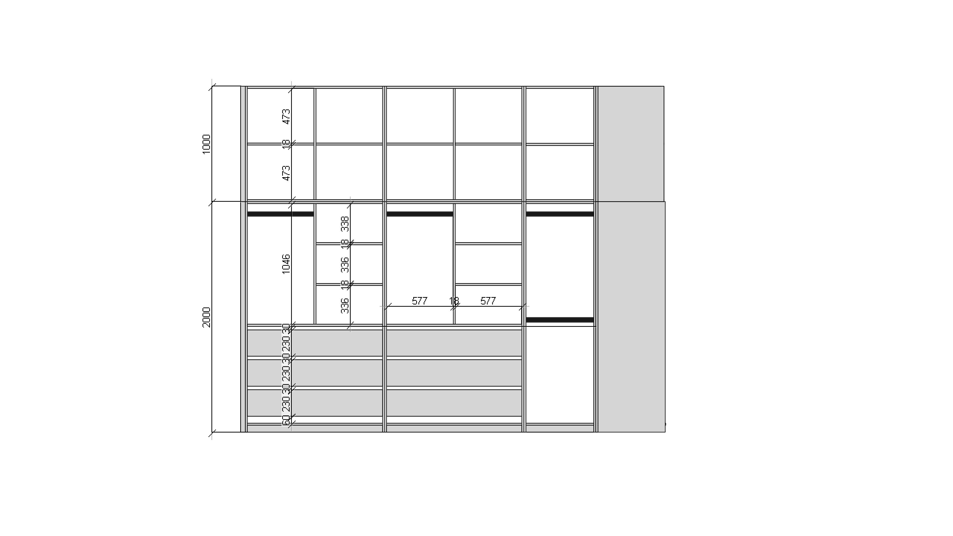
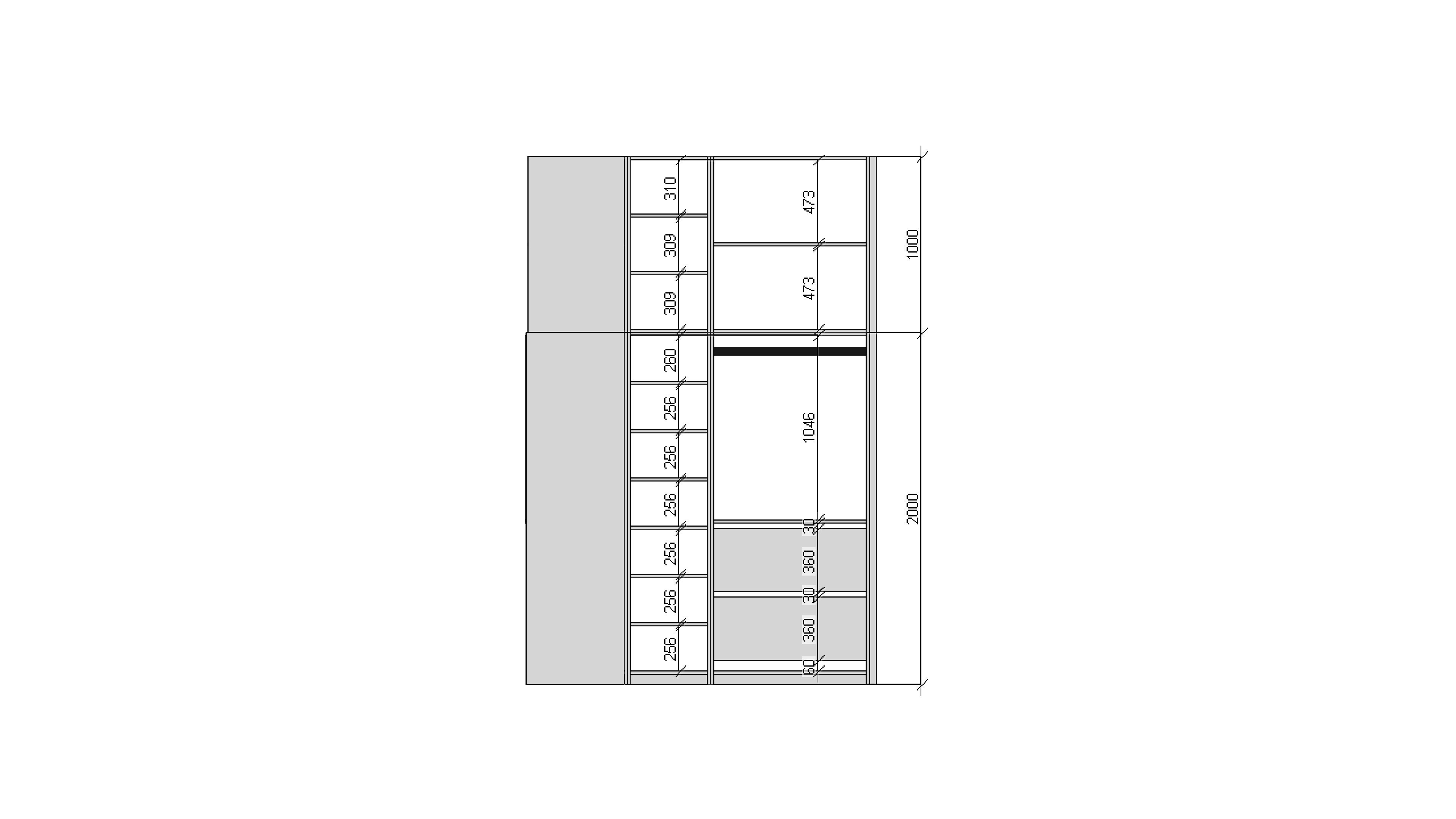
Prepare a draft using SketchUp software, input dimensions, mark drawers, layout shelves, and appliance positions.
The project drawing is sent to the client. Discussion and comments on what can be improved. We provide our recommendations and insights.
The project is refined again according to the client's wishes and our recommendations.
A visualization is created to show how the furniture will look in the 3D space.
The final project is approved, ready for production.
* The number of project revisions is limited.
** Visualization is carried out using SketchUp software. The view provided is what you see in further images. It is not the visualization created by designers or architects. Such visualizations aim to show the number of doors and drawers, the arrangement of furniture blocks, gaps between shelves, etc.
If it is a dining table or coffee table, the process is much faster and simpler:
We receive the desired table dimensions and concept.
We draw the legs, tabletop, and elements such as tapering or widening details, leg crossing, fastening elements, etc.
Send the drawing to the client, provide recommendations.
Revise the drawing if necessary.
After approval, we start the project production.
Read More
The design process consists of several steps:
Measure the spaces where the furniture will be placed and add dimensions to the room photos.
Discuss project details such as door positions and numbers, drawer layout, refrigerator and other appliances placement, etc.
Prepare a draft using SketchUp software, input dimensions, mark drawers, layout shelves, and appliance positions.
The project drawing is sent to the client. Discussion and comments on what can be improved. We provide our recommendations and insights.
The project is refined again according to the client's wishes and our recommendations.
A visualization is created to show how the furniture will look in the 3D space.
The final project is approved, ready for production.
* The number of project revisions is limited.
** Visualization is carried out using SketchUp software. The view provided is what you see in further images. It is not the visualization created by designers or architects. Such visualizations aim to show the number of doors and drawers, the arrangement of furniture blocks, gaps between shelves, etc.
If it is a dining table or coffee table, the process is much faster and simpler:
We receive the desired table dimensions and concept.
We draw the legs, tabletop, and elements such as tapering or widening details, leg crossing, fastening elements, etc.
Send the drawing to the client, provide recommendations.
Revise the drawing if necessary.
After approval, we start the project production.
Read More
The design process consists of several steps:
Measure the spaces where the furniture will be placed and add dimensions to the room photos.
Discuss project details such as door positions and numbers, drawer layout, refrigerator and other appliances placement, etc.
Prepare a draft using SketchUp software, input dimensions, mark drawers, layout shelves, and appliance positions.
The project drawing is sent to the client. Discussion and comments on what can be improved. We provide our recommendations and insights.
The project is refined again according to the client's wishes and our recommendations.
A visualization is created to show how the furniture will look in the 3D space.
The final project is approved, ready for production.
* The number of project revisions is limited.
** Visualization is carried out using SketchUp software. The view provided is what you see in further images. It is not the visualization created by designers or architects. Such visualizations aim to show the number of doors and drawers, the arrangement of furniture blocks, gaps between shelves, etc.
If it is a dining table or coffee table, the process is much faster and simpler:
We receive the desired table dimensions and concept.
We draw the legs, tabletop, and elements such as tapering or widening details, leg crossing, fastening elements, etc.
Send the drawing to the client, provide recommendations.
Revise the drawing if necessary.
After approval, we start the project production.
Do you have any questions?
Do you have any questions?
Contact Us
Do you have any questions?
Contact Us
What it looks like
What it looks like
What it looks like
Examples

















